MAC-10LVコンベンショナルタイプ
半自動型包装機
.png?w=960)
本製品の特徴
・包装モードの2種類から可能(上巻1下巻2、上巻2下巻3)
・調整いらずのシンプル操作が可能
・包装物の高さをセンサーで自動検知
・テーブルの定位置停止機能付き
・フォークリフトでの移動が可能
使用用途
・パレット・ストレッチフィルム包装
補足情報


製品仕様
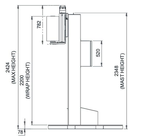
| 機械寸法 | 縦 2,300mm × 横 1,500mm × 高さ 2,346mm |
|---|---|
| ターンテーブル回転速度 | 8rpm |
| 機械重量 | 335kg |
| 電源 | 単相 AC200V 50/60Hz |
| 消費電力 | 1kW |
| 最大包装物重量 | 1,500kg |
| 最大パレット寸法 | 1,100mm × 1,100mm |
| 最大包装物高さ | 2,200mm |
| フィルム最大外径 | φ250mm |
| フィルム延伸方式 | コンベンショナル |
| 仕様 |
高さ検知光電センサー キャレッジ下部安全センサー 包装パターンを下記 2 種類から選択 ①上巻1下巻2、②上巻2下巻3 |
| オプション |
ターンテーブル φ1,650mm(最大包装物重量 1,650kg) ハイマスト仕様(2,600mm・3,000mm) 傾斜台 |
.png?w=660)


